Ogłoszenie dodane przez niezalogowanego użytkownika
| Kategoria | Gabinety i przychodnie - sprzedam |
| Specjalizacja: | Bez specjalizacji |
| Region | wielkopolskie |
| Data dodania ogłoszenia: | 7 lat temu |
| Cena: | 159 zł |
Sprzedam bezpośrednio:
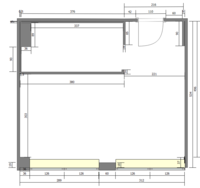
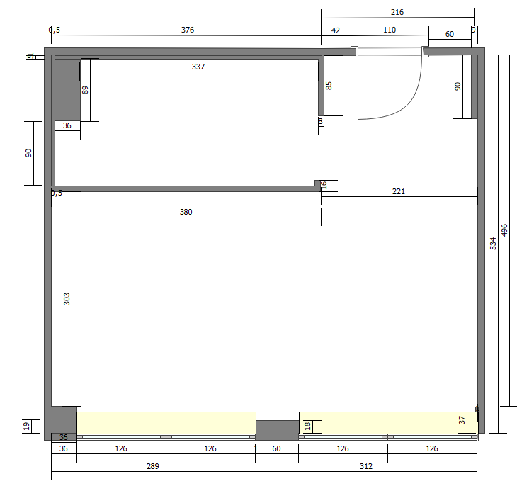
Lokal usługowy - gabinet lekarski: powierzchnia 31,5 m2
Układ: 2 pomieszczenia
Kondygnacja: I piętro (budynek II-piętrowy - przychodnia)
Stan techniczny i wyposażenie: budynek murowany, całodobowy monitoring, lokal w dobrym stanie technicznym, ciepły, ekspozycja okien północna, okna z PCV, w całym lokalu na podłodze terakota, na ścianach płytki ceramiczne, umywalka, meble biurowe, komputer, drukarka, telefon/faks, oddzielne wspólne WC dla personelu lekarskiego i WC dla pacjentów obok, w korytarzu. Części wspólne budynku - wejście, korytarze, schody po remoncie.
Otoczenie: położenie w centrum miasta, przy małej ulicy wewnętrznej, przy budynku parking na 80 miejsc.
Przynależności: 1 pomieszczenie gospodarcze w piwnicy (powierzchnia ok.3 m2).
Lokalizacja: Koło, Niepubliczny Zakład Opieki Zdrowotnej „Kolmed” ul. PCK 8 Kolejowa.
Stan prawny: własnościowe prawo do lokalu mieszkalnego z księgą wieczystą, bez obciążeń hipoteką.
Lokal usługowy - gabinet lekarski: powierzchnia 31,5 m2
Układ: 2 pomieszczenia
Kondygnacja: I piętro (budynek II-piętrowy - przychodnia)
Stan techniczny i wyposażenie: budynek murowany, całodobowy monitoring, lokal w dobrym stanie technicznym, ciepły, ekspozycja okien północna, okna z PCV, w całym lokalu na podłodze terakota, na ścianach płytki ceramiczne, umywalka, meble biurowe, komputer, drukarka, telefon/faks, oddzielne wspólne WC dla personelu lekarskiego i WC dla pacjentów obok, w korytarzu. Części wspólne budynku - wejście, korytarze, schody po remoncie.
Otoczenie: położenie w centrum miasta, przy małej ulicy wewnętrznej, przy budynku parking na 80 miejsc.
Przynależności: 1 pomieszczenie gospodarcze w piwnicy (powierzchnia ok.3 m2).
Lokalizacja: Koło, Niepubliczny Zakład Opieki Zdrowotnej „Kolmed” ul. PCK 8 Kolejowa.
Stan prawny: własnościowe prawo do lokalu mieszkalnego z księgą wieczystą, bez obciążeń hipoteką.







